Топка ЗП-РПК-2-2,6/3,66 в Майкопе

Топка ЗП-РПК-2-2600/3660 — полумеханическая топка с неподвижной решеткой и поворотными колосниками. Используется для слоевого сжигания твердых трудновоспламеняющихся видах топлива, в том числе топлива повышенной влажности. В топке ЗП-РПК-2-2600/3660 совмещены два принципа заброса топлива — механический и пневматический.

Цена:
Цена не указана
Количество:
Отправляя свои личные данные через формы на сайте, Вы даёте своё согласие на обработку персональных данных согласно Федеральному закону №152-ФЗ «О персональных данных» от 27.07.2006 г. в редакции от 01.07.2017.

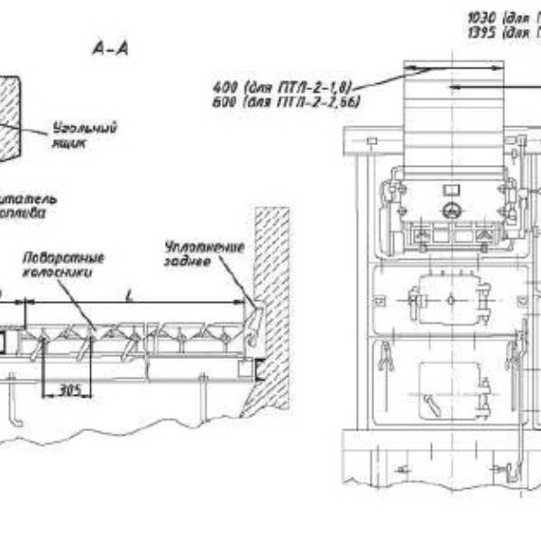
Устройство и принцип работы топки ЗП-РПК-2-2600/3660

Топка ЗП-РПК-2-2600/3660 состоит из чугунной колосниковой решетки статичного положения, и поворотных колосников. Также, устройство оснащается топливным бункером с пневматическим забрасывателем. Заказчику топка приходит в собранном виде, состоящая из колосникового полотна на раме и фронта.

Пневматический забрасыватель — устройство дозирования топлива, которое включает в себя электрический двигатель, ротор, питатель с приводом и общий жаростойкий корпус. Ротор имеет две лопатки с волновым профилем для равномерного распределения топлива в камере. Питатель забрасывателя устанавливается под топливным бункером и состоит из металлических изогнутых пластин для предотвращения просыпки топлива.

Подача топлива в камеру ЗП-РПК-2-2600/3660 происходит при помощи пневматического и механического заброса. Таким образом топливо равномерно распределяется по колосниковой решетке, сгорает в слое и во взвешенном состоянии. Крупные частицы топлива сгорают в слое, а мелкие — в топочном объеме. Для еще более эффективного сжигания, топка оснащается угольной дробилкой. Измельченное топливо фракцией 30-35 мм расходуется более эффективно.

Условное обозначение

Топка ЗП-РПК-2-2600/3660, где:

  • З — забрасыватель;
  • П — пневматический;
  • Р — решетка;
  • П — поворотные;
  • К — колосники;
  • 2 — количество забрасывателей;
  • 2600 — ширина колосниковой решетки, мм;
  • 3660 — длина колосниковой решетки, мм.

Монтаж топки ЗП-РПК-2-2600/3660

Топка ЗП-РПК-2-2600/3660 поставляется с завода в собранном виде: колосниковая решетка, опорная рама, питатель топлива, чугунный фронт. Устанавливается на предварительно выровненную поверхность без необходимости в строительстве специального фундамента. Крепится к поверхности при помощи анкерных болтов.

Монтаж котельного оборудования производится с соблюдением СНиП 11-35-76 «Котельные установки» и «Правил устройства и безопасной эксплуатации паровых и водогрейных котлов». Установка и пуско-наладочные работы выполняют специалисты, которые имеют разрешение на проведение данных работ.

Характеристики
Серия: ЗП РПК
Вид топлива: Бурый угольКаменный угольАнтрацит
Диапазон изменения нагрузки: 25-100 %
Коэффициент избытка воздуха за топкой, не более: 1,4-1,7
Потери тепла от химического недожега, не более: 2 %
Потери тепла от механического недожега: 13,5 %
Влажность топлива, не более: 40 %
Зольность топлива, не более: 35 %
Содержание мелочи (0-6 мм), не более: 60 %
Максимальный размер куска: 40 мм
Ширина колосниковой решетки: 2600 мм
Длина колосниковой решетки: 3660 мм
Активная площадь колосниковой решетки: 9,5 м²
Ширина секций: 1300 мм
Ширина забрасывателя: 600 мм
Масса: 6800 кг
Вид топки: Полумеханическая
Схемы

Города поставок

Москва
Пн-Пт 09:00 - 18:00
Сб 09:00 - 17:00
Карачаево-Черкесская Республика
Пн-Пт 09:00 - 18:00
Сб 09:00 - 17:00
Екатеринбург
Пн-Пт 09:00 - 18:00
Сб 09:00 - 17:00

Совершите покупку за 4 шага

Шаг 1
Выберите товары из каталога
Шаг 2
Поместите нужные вам товары в корзины
Шаг 3
Укажите свои контактные данные в форме обратной связи
Шаг 5
Ожидайте звонка от менеджера для оформления покупки

Похожие товары

Топки ТШПМ
Топки ТШПМ
Цена от 0 руб.
Топки ТЧЗМ
Топки ТЧЗМ
Цена от 0 руб.
Топки ТЛПХ
Топки ТЛПХ
Цена от 0 руб.
Вы смотрели эти товары
Котельные установки
Угольная котельная МКУ-0,2 используется для обеспечения теплоснабжением и подогревом воды потребителей в местах, где невозможна или нецелесообразна установка стационарной котельной. Модульная котельная изготавливается и комплектуется индивидуально, под требования заказчика.
Котельные установки
Угольная котельная МКУ-0,3 используется для обеспечения теплоснабжением и подогревом воды потребителей в местах, где невозможна или нецелесообразна установка стационарной котельной. Модульная котельная изготавливается и комплектуется индивидуально, под требования заказчика.
Котельные установки
Угольная котельная МКУ-0,9 используется для обеспечения теплоснабжением и подогревом воды потребителей в местах, где невозможна или нецелесообразна установка стационарной котельной. Модульная котельная изготавливается и комплектуется индивидуально, под требования заказчика.